| Solicite Presupuesto sin compromiso | |
Barandillas de cristal o vidrio
BALAUSCID Barandillas de Cristal o Vidrio para Escaleras, terrazas o piscinas
- Escaleras de Vidrio
- Peldaños de Vidrio
- Barandillas de Vidrio
- Sistemas Sujeción
- Pasamanos
En cuanto a las escaleras de vidrio, el Código técnico de la Edificación en el DB-SU recoge las exigencias, en altura de la barandilla de vidrio deberán ser como mínimo de 900 mm si la diferencia de cota es menor a 6 metros y de 1100 mm en el resto de los casos, en cuanto al ancho útil de los tramos que será de 800 mm como mínimo, la altura mínima y máxima de cada tramo, y el ancho mínimo de la huella que será de 220 mm y la altura máxima de la contrahuella que será de 200 mm, así como las medidas de las mesetas y la colocación de los pasamanos.
Tipos de Escaleras:
- Escaleras de vidrio templado curvado GLASSCURCID de caracol o Escaleras de cristal templado
- Escaleras de vidrio templado curvado GLASSCURCID Circulares o Escaleras de cristal templado
- Escaleras de vidrio templado curvado GLASSCURCID Helicoidales o Escaleras de cristal templado
- Escaleras de vidrio templado SECURCID en L o Escaleras de cristal templado
- Escaleras de vidrio templado SECURCID Rectas o Escaleras de cristal templado
- Escaleras de vidrio templado SECURCID en U o Escaleras de cristal templado
En cuanto a los peldaños o escalones de vidrio de las escaleras, el Código técnico de la Edificación en el DB-SU recoge las exigencias de Seguridad frente al riesgo de caídas: se limitará el riesgo de que los usuarios sufran caídas, para lo cual los suelos serán adecuados para favorecer que las personas no resbalen, tropiecen o se dificulte la movilidad. Por lo que el ancho útil de los peldaños o escalones será de 800 mm como mínimo, la altura mínima y máxima de cada tramo, y el ancho mínimo de la huella que será de 220 mm y la altura máxima de la contrahuella que será de 200 mm. En cuanto a la resbaladicidad de los suelos, estos se clasifican en función de su valor de resistencia al deslizamiento Rd, las escaleras deben ser al menos de clase 2.
Tipos de Peldaños o escalones:
- Peldaño de vidrio laminado LAMICID con un vidrio templado Antideslizante Peldaño de cristal, Escalón de cristal
- Peldaño de vidrio laminado LAMICID con un intercalario con Leds Peldaño de cristal, Escalón de cristal
- Peldaño de vidrio laminado LAMICID de colores Peldaño de cristal, Escalón de cristal
- Peldaño de vidrio laminado LAMICID con serigrafias o decorados Peldaño de cristal, Escalón de cristal
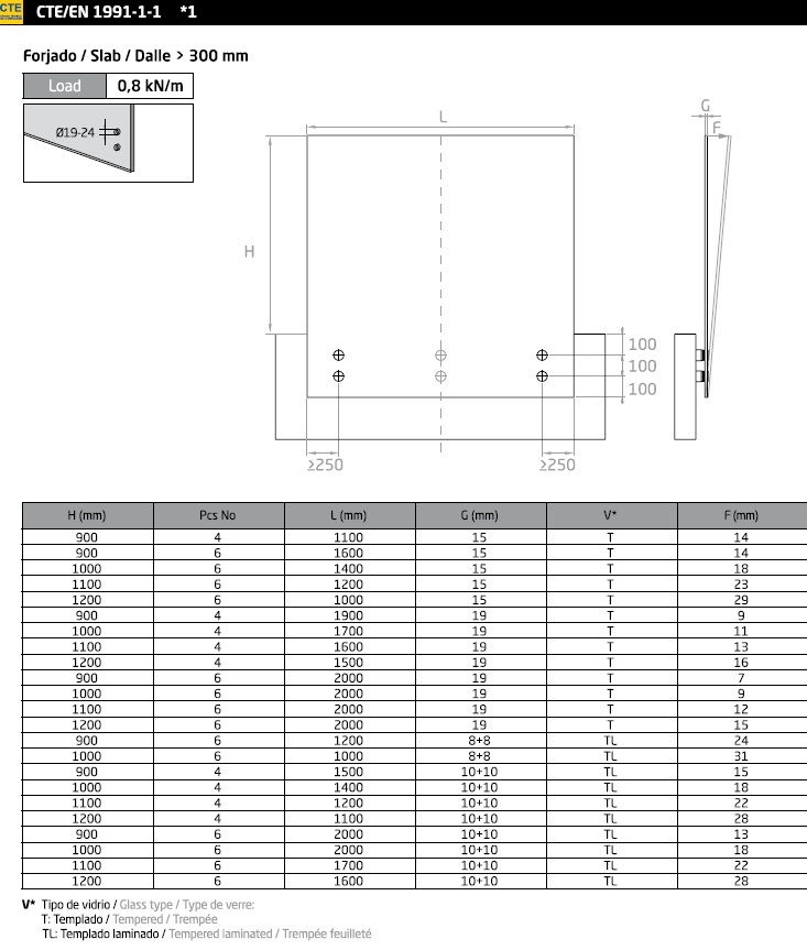
En cuanto a las barandillas de vidrio, el Código técnico de la Edificación en el DB-SE-AE recoge las exigencias de la estructura propia de las barandillas, petos, antepechos, o quitamiedos de terrazas, miradores, balcones o escaleras deben resistir una fuerza horizontal, uniformemente distribuida, según la siguiente tabla. Depende de la cateogoría de uso del edificio deberá soportar una fuerza horinzontal de 0,8 kN a 3 kN.
Barandillas:
- Barandillas de vidrio templado SECURCID y/o vidrio laminado LAMICID para interior u oficinas Barandillas cristal
- Barandillas de vidrio templado SECURCID y/o vidrio laminado LAMICID para balcones, terrazas Barandillas cristal
- Barandillas de vidrio templado SECURCID y/o vidrio laminado LAMICID para zonas comerciales Barandillas cristal
- Barandillas de vidrio templado SECURCID y/o vidrio laminado LAMICID para piscinas Barandillas de cristal
- Barandillas de vidrio templado SECURCID y/o vidrio laminado LAMICID para espacios públicos Barandillas cristal
Sistemas de sujeción de barandillas de vidrio:
- Barandillas de vidrio sujetadas mediante Perfil de suelo montaje superior. Se trata de un perfil de aluminio, o también de acero inoxidable 304 (para interiores) o 316 (para exteriores). La calidad del hormigón debe ser comprimido y traccionado. Existen varias versiones, dependiendo de su resistencia que deba soportar la barandilla de vidrio a una carga de presión horinzontal. Disponemos de las siguientes series:
- Serie SV-1301 hasta cargas de 1kN y vidrio desde 12 a 21,52 mm
- Serie SV1200-1, hasta 1,6 kn y espesores de vidrio de 12 a 21,52 mm
- Serie 3kN, capaces de absorber fuerzas laterales lineales de hasta 3kN.
- Serie MAX capaces de resistir fuerzas de 5Kn y apto para grosor vidrio de 19 a 31,52 mm.
- Todos los perfiles se pueden instalar directamente en hormigón.
- En todos los casos, el vidrio no necesita ser mecanizado, es sujetado mediante cuñas, por tanto es suficiente con un vidrio laminado LAMICID 6+6.2 8+8.2 o 10+10.2, aunque puede ser necesario que sean vidrios templados SECURCID, dependiendo de la carga a soportar y del espesor elegido. Para reducir el espesor de vidrio, y conseguir una mayor estabilidad estructural, es requerido para fabricar el vidrio laminado el uso del intercalario SENTRYGLAS, que permite una resistencia mucho mayor a espesores menores
- Barandillas de vidrio sujetadas mediante Perfil embutido al suelo.Se trata de un perfil de aluminio en acabado INOX SATINADO. La calidad del hormigón debe ser comprimido y traccionado.
- Serie SV-1303 para embutir en el suelo y permite que la barandilla de vidrio pueda soportar cargas horizontales de hasta 1 kN y con vidrios de espesor de 12 a 21,52 mm
- El vidrio no necesita ser mecanizado, se sujeta mediante cuñas, por tanto es suficiente con un vidrio laminado LAMICID 6+6.2 8+8.2 o 10+10.2, aunque puede ser necesario que sean vidrios templados SECURCID, dependiendo de la carga a soportar y del espesor elegido. Para reducir el espesor de vidrio, y conseguir una mayor estabilidad estructural, es requerido para fabricar el vidrio laminado el uso del intercalario SENTRYGLAS, que permite una resistencia mucho mayor a espesores menores.
- Barandillas de vidrio sujetadas mediante Perfil de montaje lateral.Se trata de un perfil de aluminio, o también de acero inoxidable 304 (para interiores) o 316 (para exteriores). La calidad del hormigón debe ser comprimido y traccionado. Disponemos de las siguientes series:
- Serie SV-1302 que permite que la barandilla de vidrio soporte cargas de hasta 1kN y vidrio de espesor de 12 a 21,52 mm
- Serie SV-1200-2 que permite que la barandilla de vidrio soportecargas de hastas 1,6 KN para vidrio desde 12 a 21,52 mm
- Serie 3kN, que permite que la barandilla de vidrio sea capaz de absorber fuerzas laterales lineales de hasta 3kN
- Serie MAX que permite que la barandilla de vidrio sea capaz de resistir fuerzas de 5Kn y con vidrios de espesor de 19 a 31,52 mm.
- En todos los casos, el vidrio no necesita ser mecanizado, se sujeta mediante cuñas, por tanto, es suficiente con un vidrio laminado LAMICID 6+6.2 8+8.2 o 10+10.2, aunque puede ser necesario que sean vidrios templados SECURCID, dependiendo de la carga a soportar y del espesor elegido. Para reducir el espesor de vidrio, y conseguir una mayor estabilidad estructural, es requerido para fabricar el vidrio laminado el uso del intercalario SENTRYGLAS, que permite una resistencia mucho mayor a espesores menores
- Pinza 6400, sistema para sujetar barandillas de vidrio al suelo, soporta cargas de hasta 1,6 kN y para vidrios de espesor desde 16 a 21,52 mm. de 174 mm de altura,Realizada en acero inoxidable 316 válida para exteriores.
- Los vidrios a colocar en la barandilla no tienen que ser mecanizados, pero deberán ser obligatoriamente o vidrio templado SECURCID de 19 mm, o también vidrio templado laminado LAMICID 8+8.4 mm o 10+10.4 vidrio templado laminado SENTRYGLAS 6+6.4 o 8+8.4 o 10+10.4
- Deben colocarse al menos 2 pinzas a un máximo de 250 mm de cada lado de la pieza de vidrio de la barandilla. La distancia entre piezas será como máximo de 500 mm
- Pinza 6000, sistema para sujetar barandillas de vidrio al suelo, soporta cargas de hasta 1,0 kN y para vidrios de espesor desde 12 a 17,52 mm. Realizada en acero inoxidable 316 válida para exteriores. De 167 mm de altura. Disponen de un pasador de seguridad para mecanizar el vidrio, de uso opcional (5015).
- Los vidrios a colocar en la barandilla no tienen que ser mecanizados, pero deberán ser obligatoriamente o vidrio templado SECURCID de 12 o 15 mm, o también vidrio templado laminado LAMICID 6+6.4 o 8+8.4 mm o vidrio templado laminado SENTRYGLAS 6+6.4 o 8+8.4
- Deben colocarse al menos 2 pinzas a un máximo de 250 mm de cada lado de la pieza de vidrio de la barandilla. La distancia entre piezas será como máximo de 500 mm
- Pinza CC-780, sistema para sujetar barandillas de vidrio al suelo, soporta cargas horizontales de hasta 0,8 kN y para vidrios de espesor entre 12 y 17,52 mm. La calidad recomendada del hormigón es comprimido y traccionado. Dispone de un sistema nivelador en los 3 ejes XYZ.
- Los vidrios a colocar en la barandilla no tienen que ser mecanizados, pero deberán ser obligatoriamente o vidrio templado SECURCID de 12 o 15 mm, o también vidrio templado laminado LAMICID 8+8.4 mm o vidrio templado laminado SENTRYGLAS 6+6.4 o 8+8.4
- Deben colocarse al menos 2 pinzas a un máximo de 250 mm de cada lado de la pieza de vidrio de la barandilla. La distancia entre piezas variará en función de la altura del vidrio, que como máximo será de 1200 mm, y del espesor del vidrio colocado
- Botón CC775 redondo de 52 mm de diámetro o CC772 cuadrado de 55mm. Adaptador lateral de vidrio para sujetar barandillas de vidrio. La calidad recomendada del hormigón es comprimido y traccionado. Dispone de un sistema de ajuste para evitar irregularidades de la superficie de hasta 5 mm. Soporta hasta 0,8kN de carga lateral y para vidrios de 15 a 21,52 mm de espesor.
- Los vidrios deben ser mecanizados mediante taladros de 19 a 24 mm de grosor , pero deberán ser obligatoriamente o vidrio templado SECURCID de 15 o 19 mm, o también vidrio templado laminado LAMICID 8+8.4 mm o 10+10.4 o vidrio templado laminado SENTRYGLAS 6+6.4 o 8+8.4 o 10+10.4
- Deben colocarse al menos 4 botones, 2 cada lado, uno encima del otro a una distancia de 100 mm, y a un máximo de 250 mm de cada lado de la pieza de vidrio de la barandilla. La distancia entre ambos pares de botones, variará en función de la altura del vidrio, que como máximo será de 1200 mm, y del espesor del vidrio colocado
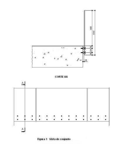
- Botón 208 sujeta escalón a pared de barandilla de vidrio. Adaptador lateral de vidrio para sujetar escalones de vidrio a barandilla de vidrio o también a pared de hormigón. Permite esconder el taladro dentro escalón, permitiendo una visión esclusivamente de vidrio.
|
|
![]() |
![]() |
![]() |
![]() |
|
![]() |
![]() |
![]() |
|
![]() |
![]() |
|
![]() |
||
![]() |
||
![]() |
||
![]() ![]() |
||||||||||||
![]() |
||||||||||||
![]() |
||||||||||||
![]() |
||||||||||||
![]() |
Los soportes para el escalón se pueden insertar dejando el primer vidrio libre de mecanizaciones. Las piezas están realizadas en acero inoxidable 304, también disponibles AISI 316, en acadado pulido brillo. Disponible también en acabado mate. | |||||||||||
|
||
CARACTERISTICAS |
||
|
||
DIMENSIONES DE LOS VIDRIOS |
||
La anchura mínima de los vidrios de la barandilla(que corresponden a la distancia entre los bordes verticales para los acristalamientos no rectangulares) se da en el cuadro 2, en referencia a la norma NF P 06-001. En el caso de los acristalamientos que deben de resistir mayor presión de viento, será necesaria comprobación experimental según el cuaderno CSTB 3034 si la presión de viento normal Pn (kN/m2) verifica la siguiente relación: Pn > 2 Q/H2 Dónde Q en kN/m es la carga de explotación definida en la norma NFP 01-013, aplicada a 1m de altura. |
||
Ambito de aplicación |
||
La aplicación es realizada por empresas especializadas bajo la supervisión de GRUPO CORBALAN. Puede encontrar más información en el documento adjunto.
|
| PASAMANOS - Puede colocarse un pasamanos sobre el borde superior del vidrio de la barandilla, sujetado o no a las paredes de la obra. Este pasamanos se coloca sobre el vidrio con interposición de un cordón de silicona. | ![]() |
|
![]() |
||
![]() |
En el caso de barandillas de vidrio de altura de protección superior a 1 m, o cuando sea necesario, se puede fijar una barra de apoyo en consola en el acristalamiento atornillándola a través de taladros de 16 mm. espaciados 500 mm entre ellos | |
| Tambien existen otros pasamanos, que van sujetos mediante pinza, que no necesita realizarse mecanización del vidrio de la barandilla, como la foto adjunta. | ![]() |
|
| Disponemos de todos los elementos necesarios para la unión entre tramos , incluso de difentes ángulos a 90 grados, 45 grados, ... | ![]() |
|
| Tipos de pasamanos para barandillas de vidrio | ||
![]() |
![]() |
|
| perfil superior 6920 ovalado de 80 o 110 mm de ancho en aluminio o inox 304 o 316, para sujetar vidrio con goma para espesores de 8 a 25 mm | Perfil superior 6925 rectangular en aluminio, o inox 304 o 316 de 40x40 mm para sujeción del vidrio mediante goma para espesores de vidrio de 8 a 21 mm | |
![]() |
![]() |
|
| perfil superior RP1400 de Acero INOX 304, redondo de 42,4 mm de diametro para vidrios desde 8 a 21,52 mm sujetado con goma. | Perfil superior SV1250 Alumnio Anodizado, rectangular sujetado con cinta doble cara y en 3 tamaños para 3 grosores de vidrio : 12, 16 y 20 mm | |
![]() |
![]() |
|
| Perfil 6945 de aluminio para proteger cantos sujetado con cinta doble cara y para esporess de vidrio de 12 a 25 mm. | Perfil lateral rectangular | |































